Slevový program
O nás
Reference
Studie
Projekty
Dozory
Zaměření
Vady staveb
Certifikáty
Kontakty
DV engineering, s.r.o.
Konstantinova 1492/36
149 00 Praha 4 – Chodov
info@dozory-projekty.cz
+420 608 955 763
osobní přístup a flexibilita / bezplatné poradenství a konzultace / hluboké znalosti v oboru / vysoký etický a profesní standard
Studie
Projekt
Dozor
Zaměření
Stavby
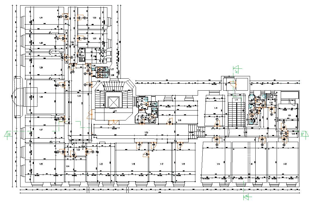
Budovy úřadu městské části Prahy 5
zpět
Klimatizace Praha A-klimastav s.r.o.
|
Elstar plus s.r.o.
|
Stolařství Pintera
|
Hodinový manžel Brno
|
KOZÁK - povrchové úpravy, s.r.o.
|
Elektromontáže Brno
|
Plánování a řízení výroby TopTech Brno s.r.o.
|
Bezpečnost práce a požární ochrana
|
Návrhy a realizace interiérů Brno
|
Finanční poradenství Brno
|
Interiérové dveře a zárubně Brno
|
Střechy a plechové krytiny Brno
|
Prodej plastových oken Brno
|
Zámečník Brno nonstop
|
Dopravní značky, dopravní značení
|
Řezání panelu, řezání betonu Brno